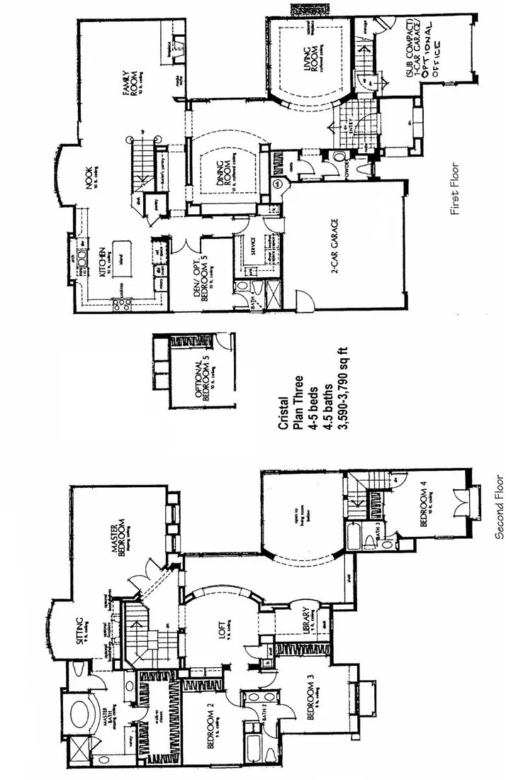
10 Spring, Irvine CA 92620 | $3,298,000
Listing provided courtesy of Mike Dunn of Coldwell Banker Platinum Prop. Last updated . Listing information © 2025 SANDICOR.
More Details

Listing provided courtesy of Mike Dunn of Coldwell Banker Platinum Prop. Last updated . Listing information © 2025 SANDICOR.
