11348 Reseda, Porter Ranch CA 91326 | $3,500,000

  • 12 bedrooms
  • 12 bathrooms
  • 6,000 Sq Ft
  • 7821 Lot Sq Ft
  • Type: Residential
  • Stories: 2
  • Year Built: 1965
  • MLS#: 306672090
  • Community:

Listing provided courtesy of Jimmy Rashid of Berkshire Hathaway HomeServices California Properties. Last updated . Listing information © 2025 SANDICOR.

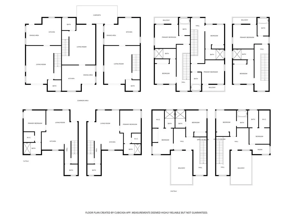
Brand-new 5-unit compound in Porter Ranch designed for multigenerational living, community-based housing, flexible residential use, and investment. Reimagined from a single-family lot, the property features two detached 3-bedroom, 3-bath homes and three 2-bedroom, 2-bath units across two additional structures, creating a low-density, campus-style setting that balances privacy with shared proximity. The layout is well suited for extended families, group living environments, or organizations seeking a residential setting that supports both independence and connection. Detached residences offer a single-family feel, enhancing livability and broad appeal. Currently under construction, this is an opportunity to acquire a newly developed asset with potential input on final finishes. Each unit is designed with open floor plans, contemporary kitchens, and efficient layouts aligned with modern living standards. As brand-new construction, the property offers all new systems, reduced maintenance requirements, and long-term operational efficiency, making it attractive for both owner-users and investors. The property will include five on-site parking spaces, including two covered, with additional street parking available. Conveniently located near shopping, dining, parks, freeway access, and major employment centers, this is a rare opportunity to acquire a versatile, newly constructed residential compound in one of the San Fernando Valleys most desirable neighborhoods. Images have been digitally edited and/or are renderings and may not reflect the current condition of the property.

More Details

Johnny Noris

Call or Text: 858.349.7170