627 Cardiff Reef, Costa Mesa CA 92627 | $1,897,500

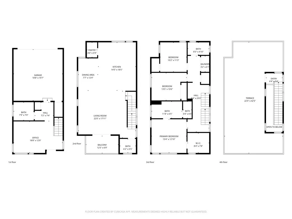
  • 3 bedrooms
  • 4 bathrooms
  • 2,303 Sq Ft
  • 87687 Lot Sq Ft
  • Type: Residential
  • Stories: 3
  • Year Built: 2019
  • MLS#: 306657901
  • Community:

Listing provided courtesy of Jody Clegg of Compass. Last updated . Listing information © 2025 SANDICOR.

Welcome to this exclusive live/work DETACHED contemporary residence, perfectly positioned on a prime corner lot. This stunning home offers the best of urban convenience with coastal charm, close to premier shopping, dining, and major freeways. Designed for versatility, this home features 3 bedrooms, 4 bathrooms, and a flexible first-level space ideal for a private office or denperfect for working from home or hosting clients. A 2-car attached garage with epoxy flooring, and a side yard with storage for bikes and trash cans add both function and convenience. The second level showcases an open-concept living space filled with natural light. The spacious living and dining areas flow seamlessly into a beautifully appointed kitchen featuring a large center island for entertaining, stone countertops, stainless steel appliances, and a walk-in pantry. On the third level, youll find three well-sized bedrooms, two bathrooms, a convenient laundry area, and abundant storage. The primary suite offers a generous walk-in closet and an ensuite bathroom complete with dual sinks, and a large walk-in shower. One of the standout features of this home is the expansive covered rooftop deck, which offers additional outdoor living space, complete with a built-in outdoor kitchen, and mounted TV. Its the ideal setting to relax and enjoy city lights and breathtaking sunset views year-round. Enjoy low HOA dues and close proximity to restaurants and shopping, John Wayne Airport, Newport Beach, top-rated Newport schools, and the 55 and 405 freeways. This is coastal contemporary living at its finestwhere

More Details

Johnny Noris

Call or Text: 858.349.7170