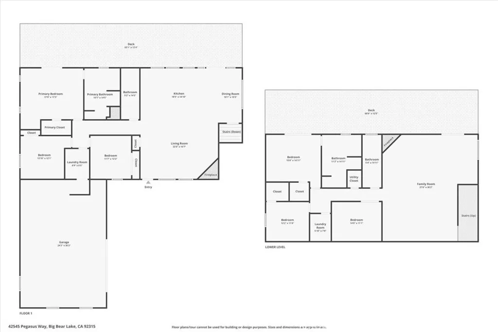
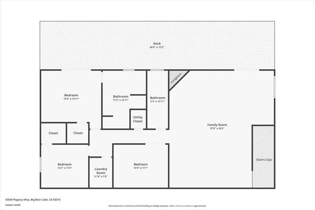
42545 Pegasus, Big Bear Lake CA 92315 | $1,375,000
Listing provided courtesy of Becki Wheeler of RE/MAX BIG BEAR. Last updated . Listing information © 2025 SANDICOR.
More Details

Listing provided courtesy of Becki Wheeler of RE/MAX BIG BEAR. Last updated . Listing information © 2025 SANDICOR.
