1000 Ocean Boulevard, Long Beach CA 90802 | $1,750,000

  • 3 bedrooms
  • 2 bathrooms
  • 2,052 Sq Ft
  • 37404 Lot Sq Ft
  • Type: Residential
  • Stories: 7
  • Year Built: 2003
  • MLS#: 306643439
  • Community:

Listing provided courtesy of Scott Chapman of Coldwell Banker Realty. Last updated . Listing information © 2025 SANDICOR.

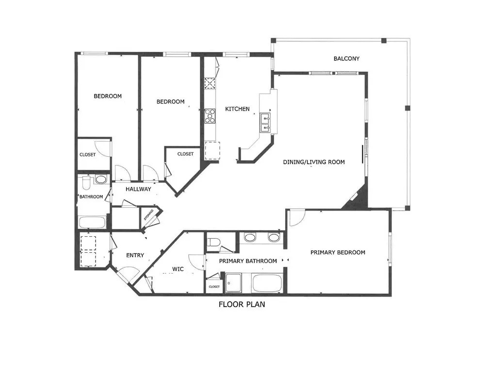
1000 E Ocean Blvd Coastal Luxury Meets Everyday Comfort. Welcome to beachfront living at its finest. This rare, corner-unit oceanfront condo offers panoramic views, refreshing ocean breezes, and the soothing sound of waves from your wraparound balcony. Turnkey and thoughtfully designed, the spacious 3-bedroom, 2-bath residence blends elegance with coastal charm. Enjoy an open-concept layout with ocean views from the living room, Kitchen and Bedrooms. Gourmet kitchenfeaturing a large center island, new appliances, and breakfast bar seating, ideal for entertaining. The sunlit living room boasts oversized south-facing windows, a cozy fireplace, and direct access to the balcony. The generously sized primary suite is a true retreat with large windows, a walk-in designer closet, and a luxurious en suite bath complete with a soaking tub and separate shower. Two additional bedrooms and a full bath are set privately on the opposite side of the unit, along with a dedicated laundry room offering extra storage. Located on the amenity-rich pool level, the home provides convenient access to elevators and building features, including: Two secure parking spaces on the first level, Private storage space, Rooftop lounge and pool with sweeping ocean views, Fully equipped gym, Community pool, game room, and newly renovated recreation room with kitchen and office space. Step outside and stroll directly onto the sand from this impeccably maintained building, and embrace the Southern California beachfront lifestyle youve been dreaming of.

More Details

Johnny Noris

Call or Text: 858.349.7170